物流施設
埼玉県久喜市河原井町8番地
基本情報
出発前に確認する情報
到着時に確認する情報
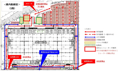
施設案内 入退場について ⾞両の⼊場⼝は敷地北西側、出場口は敷地南西側にあり、以下図の通りに⽮印の⽅向に沿って入退場する。


入退場口 (1)北西側車両入口 https://maps.app.goo.gl/3USuuL1tNZdH1H9u7 敷地外から Aバースへの動線は右折 B、Cバースは動線は直進


(2)北東側車両出口 https://maps.app.goo.gl/Gq9V7CKfHrSp7FWi7 Aバースからの出口動線 B、Cバースから出口動線


(3)トラック待機場 赤枠部分が40ftセミトレーラー待機所 ※その他待機場所での40ftセミトレーラー待機は禁止 40ftセミトレーラー待機所 その他トラック待機場



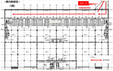
大型車スロープについて Cバースへ、ここからスロープでアクセスできます。 ※相互通行禁止下り優先となります。 https://maps.app.goo.gl/aKM2dTLubUX959oW7 地上階から スロープのカーブ部分 3番バース スロープ中央に柱がございますのでご注意ください。



その他
敷地東側(大型車スロープ側)1階にドライバー用休憩室及びトイレあり。 https://maps.app.goo.gl/gpTopHzZkZ2iV1jRA 休憩室入口(人口酸素自動販売機設置) トイレ男女別 ドライバー用休憩室(空調あり)



【作成日】
【最終更新日】